Many
Manuals
search
Kategorie
Značky
Domů
Linear
ne
Boiler
Uživatelský manuál
Linear Boiler Uživatelský manuál Strana 20
Stažení
Sdílet
Sdílení
Přidat do mých příruček
Tisk
Strana
/
28
Tabulka s obsahem
KNIHY
Hodnocené
.
/ 5. Na základě
hodnocení zákazníků
1
2
3
4
5
6
7
8
9
10
11
12
13
14
15
16
17
18
19
20
21
22
23
24
25
26
27
28
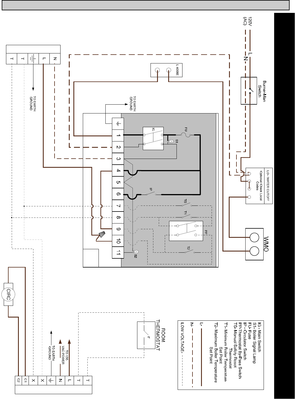
BIASI B/
40
PAGE 20
B-40 Contr
ol Panel
W
iring Diagram for Becke
tt/Heat W
i
se Oil Burner 24V
CIRCUL
ATOR RELAY
BURNER CON
TROL
1
2
...
15
16
17
18
19
20
21
22
23
24
25
26
27
28
6-12 SECTION
1
TABLE OF CONTENTS
3
WARNING
5
2. General Information:
6
4. Combustion Air Supply:
7
5. Boiler Location:
7
6. Boiler Block Assembly:
8
8. Burner Setup:
10
9. Gas Line Piping
12
PAGE 13
13
BIASI B/40
13
10. Breeching and Venting:
14
11. Piping:
15
10. Blocked Flue Switch:
15
PAGE 16
16
12. Boiler Jacket Assembly:
17
13. Wiring:
18
CONTROL PANEL DESCRIPTION
19
CIRCULATOR RELAY
20
BURNER CONTROL
20
PAGE 22
22
Burner Primary Control
23
14. Commissioning:
24
15. Maintenance:
24
16. Installer Notes
25
PAGE 26
26
PAGE 27
27
Warranty
28
Komentáře k této Příručce
Žádné komentáře
Publish
Související produkty a manuály pro ne Linear Boiler
ne Linear MDT-2 Uživatelský manuál
(2 stránky)
ne Linear DX-COKIT Uživatelský manuál
(2 stránky)
ne Linear RE-BWC1 Uživatelský manuál
(1 stránky)
ne Linear DR2 Uživatelský manuál
(1 stránky)
ne Linear 3060 Uživatelský manuál
(2 stránky)
ne Linear Central Vacuum Uživatelský manuál
(1 stránky)
ne Linear Sander WO15Z-1 Uživatelský manuál
(2 stránky)
ne Linear Drums 5525 Uživatelský manuál
(12 stránky)
ne Linear DMC-10 Uživatelský manuál
(2 stránky)
ne Linear Automobile Electronics 216559 B Uživatelský manuál
(2 stránky)
ne Linear DXS-10 Uživatelský manuál
(1 stránky)
ne Linear XR-16 Uživatelský manuál
(2 stránky)
ne Linear 115500 B Uživatelský manuál
(1 stránky)
ne Linear 2500-2346-LP Uživatelský manuál
(2 stránky)
ne Linear V361 Uživatelský manuál
(1 stránky)
ne Linear Satellite Radio 3089 Uživatelský manuál
(2 stránky)
ne Linear wt00z-1 Uživatelský manuál
(4 stránky)
Tisknout dokument
Tisknout stránku 20
Komentáře k této Příručce